AW50 Facade
Description
The AW50 is a versatile, aluminium façade system that offers robust performance and sleek aesthetics. With high thermal insulation and flexible glazing options, AW50 is ideal for modern
architectural needs, enhancing building exteriors with a refined look. Engineered for durability, this system adapts to various structural requirements. Suitable for commercial projects that prioritize both
style and energy efficiency.

Highlights
- Suitable for commercial and architectural applications
- Enhances building appearance with clean, refined lines
- Large panes can be configured with this system
- Thermal isolation with value down to Um = 1.17 [W/m²K] (infill panel 52mm)
- Aesthetic, narrow sightline of the system profiles: 50 mm
- Easy integration with other façade systems
- Good sound resistance
- Single and multiple window panel designs are available
- Surface finishing – powder coating (RAL, NCS), anodizing
Parameters
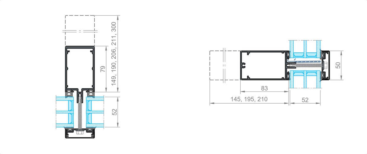
Sightline: 50 mm
Mullion depth: 79, 149, 190, 206, 211, 300 mm
Transom depth: 83, 145, 195, 210 mm
Thermal isolation Um: 1.17 [W/m²K] (infill panel 52mm)
Maximal glazing thickness: 80 mm
Functionality: internal and external curtain walls
Downloads
PDF Leaflet (English)
PDF Leaflet (Dansk)
PDF Leaflet (Svenska)
CAD
DWG 2D sections














